Общие правила
Для корректного построения границ помещения следует работать с параметром «Границы помещения» у категории «Стены»:

Если единое помещение разделяется несущими стенами / перегородками (смотри Рисунок — Пример размещённого помещения с неучтёнными несущими стенами / перегородками ), необходимо принять во внимание, что стены, находящиеся в помещении, не должны учитываться в площади этого помещения.

В этом случае необходимо дополнительно создать границу помещения линией-разделителем по контуру неучтённой стены:

Перегородки в санузлах не нужно обводить контуром, если они выполняются из гипсокартона. В этом случае площадь перегородок входит в помещение санузла. В остальных случаях при большей толщине стен необходимо применение инструмента «Разделитель помещений».
При работе со связанными файлами, которые участвуют в формировании помещений (модели раздела КЖ), необходимо обратить внимание на параметр «Граница помещений». Для корректного построения помещений значение параметра должно быть «Да»:

Помещения, ограниченные витражом
При работе с инструментом «Витражи» необходимо дополнительно создавать границу помещения по внутренней грани стены, так как при создании витража граница помещения автоматически выстраивается по центру витража. Это приводит к увеличению площади помещения и некорректному заключению договоров между Девелопером и Клиентом:
Слева — Неверно, Справа — Верно

При наложении линии разделителя по краю стены программа выдает предупреждение, которое остаётся на протяжении всего проекта.
При таком варианте конструктивных решений это не считается ошибкой:

Важно доводить стены снизу до уровня размещения помещения во избежание ошибок.
Не допускается раскрашивать помещения через фильтры, так как данная цветовая схема не будет печататься в PDF.
Высота помещения
DD должны следить за высотой помещения, так как это необходимо, чтобы:
- Автоматически моделировать отделку с использованием плагина DS;
- Корректно считать площадь отделки на стадии ОПР с помощью габаритов помещения;
- Выдавать задания инженерам на помещения (объем воздухообмена помещений через пространства);
- Автоматически моделировать подвесной потолок на нужной высоте.
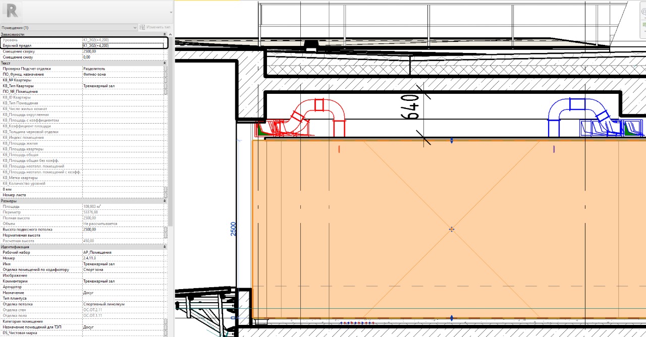
Проверить правильность высоты помещения можно через проверочную спецификацию «КК_Высота помещений»:
1. Параметр «Верхний предел» должен быть равен уровню размещения помещения;

2. «Смещение сверху» равно расстоянию от уровня размещения помещения до нижней границы потолка;
Важно: Верхняя граница помещения должна доходить до нижней границы потолка для проверки ИОС. Инженерные сети должны попадать в запотолочное пространство и не пересекать помещение и потолок при его моделировании.
В случаях, когда потолок не моделируется, высота помещения вычисляется следующим образом:
(Высота уровня верхнего предела + Верхнее смещение) — (Высота уровня + Смещение снизу) и равно Полной высоте помещения.

3. «Смещение снизу» заполняется, если помещение начинается ниже отметки чистого пола. В остальных случаях равно нулю.
